El siglo XIX es el de la transformación de la producción de ron. Hasta entonces, únicamente se utilizaban alambiques tipo Père Labat para producir el ron francés, con unos resultados mediocres.

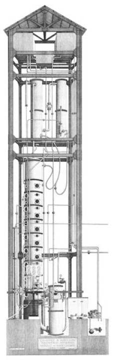
Otro invento notorio fue el de Édouard Adam, después mejorado por Bréard, que en 1801 logró calentar tres calderas con una sola. Para ello se lleva a ebullición la primera caldera llena de vino y el vapor pasa a la segunda, que también se lleva a ebullición. Lo mismo ocurre con la tercera. Una parte del agua se condensa y vuelve a la caldera, pero los vapores de alcohol circulan hasta el serpentín donde se produce la condensación. Fue precisamente a partir de estos dos inventos, entre otras cosas, que Jean-Baptiste Cellier Blumenthal inventó la columna de destilación, en 1813, realizando los intercambios entre el vino y el vapor en vertical, a través de platos perforados.
Ahora, de lo que se trataba, era de introducir el vapor por la parte inferior de la columna y
La columna de destilación no logró instalarse en las Antillas en la primera mitad del siglo XIX por la razón mencionada, pero también, tal y como se indica en el Manuel pratique du planteur de canne de 1853, por la dificultad para encontrar personas que estuvieran capacitadas para trabajar con ella. Mientras, se fue perfeccionando el alambique. Los alambiques jamaicanos de doble retorta se introdujeron en 1835 en las islas francesas y los alambiques tipo Privat y Wendelken sustituyeron a los Père Labat.
Entre los fabricantes que querían introducir sus aparatos de destilación en las Antillas surgió una gran competencia. En las islas francesas, las columnas de baja graduación, que producían un alcohol entre 50% y 60% vol. de alcohol, se impusieron en la segunda mitad del siglo XIX, especialmente gracias a la invención en 1855 de la columna tipo Savalle, la cual podía ser rectangular o circular.
En 1883, se contaban 122 columnas de este tipo en las Antillas y América del Sur, con una producción de hasta 180 hl al día. También se impuso la denominada columna criolla de platos perforados con campanas. El otro fenómeno que facilitó la instalación de las columnas de destilación fue la creación de las centrales de vapor que agrupaban a varias de las tradicionales habitations o haciendas, de manera que cuando se creó la segunda fábrica de Martinica, en 1862, se instaló allí una columna Savalle.
La revolución que supuso la introducción de la columna de destilación permitió que se disparase la producción de ron. En la década de 1840, Martinica produjo un máximo de 17 000 hl de ron, mientras que en 1892 la producción ascendió a 220 000 hl.